emilspec
An Integrated Publishing, Inc. Site
eMilSpec
An Integrated Publishing Website
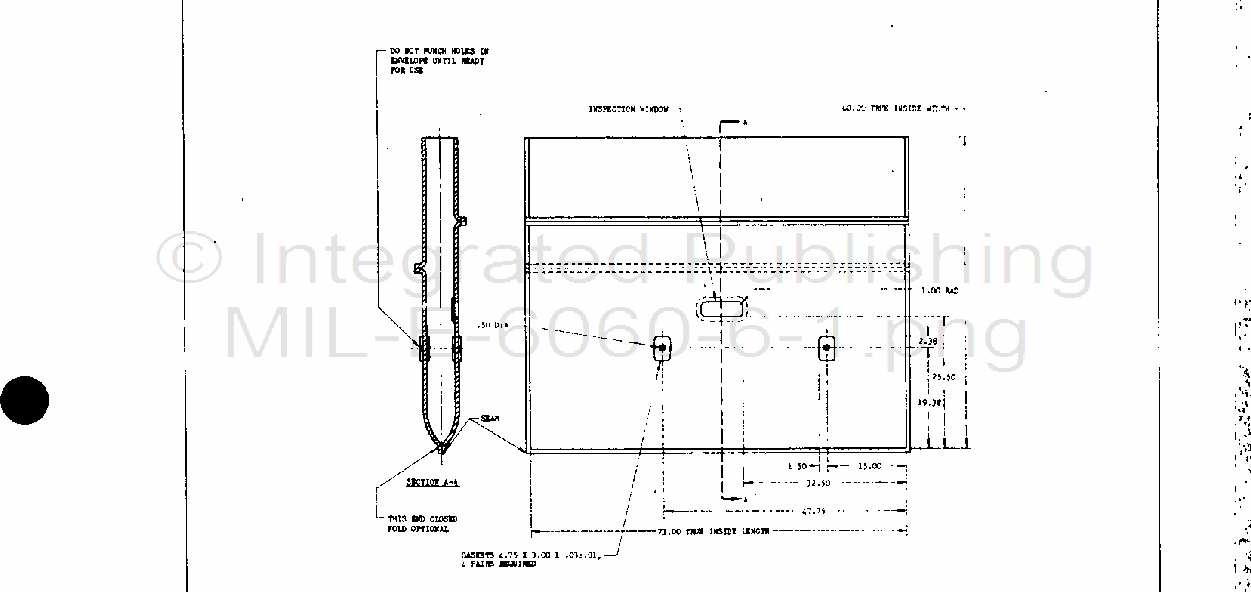
Envelope, Packaging, Water-Vaporproof, Flexible (O-435 Engine)
For Parts Inquires submit RFQ to
Parts Hangar, Inc.
© Copyright 2015 Integrated Publishing, Inc.
A Service Disabled Veteran Owned Small Business